KCS系列矿用湿式除尘风机具有通风与除尘双重功能,主要适用于煤矿井下、冶金、矿山、化工、建材、工厂厂房、工作燃煤锅炉等行业粉尘比较集中的产尘作业点,含尘空气就地净化,并能******气体中部分有毒有害成分;有效净化作业环境,提升作业环境卫生标准,保证作业人员免受尘毒侵害及生产。本系列除尘风机设计结构紧俏体积小,除尘风量大装机功率小,适合应用在采煤机上。矿用湿式旅流除尘风机应用于煤矿井下、岩开巷及锚喷作业面喷浆机,采掘工作面采煤机等粉尘比较集中地产尘作业点。使含尘空气就地净化并能部分******气体中的有害成分,有限地使作业环境符合工业卫生标准,保护工人免受尘毒侵害。

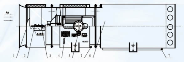
KCS系列矿用湿式除尘风机结构示意图

1、进口防护网 2、进水管路 3、水质过滤器 4、设备铭牌 5、电源接线端盖 6、脱水装置 7、污水排水孔
KCS系列矿用湿式除尘风机技术参数表